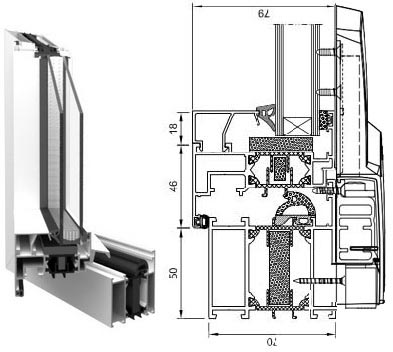
Aluminium Parallel Schiebe Kipp Tür
3 Kammer System wärmeisoliert Bautiefe 70 mm

Was spricht für den Werkstoff Aluminium?
+pflegeleicht, kein Streichen, wenig Ausbleichen durch Pulverbeschichtung
+hohe statische Stabilität
+auch sehr große Fenster- oder Balkontürelemente bieten eine hohe Stabilität
+lange Lebensdauer und sehr gut recyclebar
+Pflegeleichtigkeit
+individuelle Farbgestaltung
+sehr gut für stark beanspruchte Fenster mit vielen Öffnungs- und Schließzyklen (Gewerbebauten) geeignet
+wartungsarm
3 Kammer System HI wärmeisoliert Bautiefe 70 mm

Kunststoff-Hebe-Schiebetüren gedämmt
Der motorisch betriebene Hebeschiebebeschlag kombiniert Sicherheitstechnik mit moderner Antriebstechnik.
Erweitert durch das Schema C können auch Flügel von 2-flügeligen Türelementen motorisch und damit sicher und leicht betrieben werden.
Das Öffnen und Schließen ist aber auch durch leichtes Berühren des Griffs möglich. Die Tür
setzt sich in Bewegung und stoppt kurz bevor die Endposition erreicht ist wieder ab. Das System wird als vormontiertes auf Maß gefertigtes Set in verschiedenen Ausstattungsvarianten geliefert und ist somit einfach zu montieren.
Fertig montiert hebt und schiebt der HS-Master Flügelgewichte bis 300 Kilogramm. Die zugelas-sene Flügelhöhe reicht von 1840 bis 2765 mm, die Flügelbreite von 950 bis 3300 mm. Die Maße gelten für Elemente aus Holz, Kunststoff und Aluminium.
Aufgrund der einfachen Handhabung, der flachen Laufschiene und den großen Öffnungsweiten sind alle Hebeschiebe-Beschläge sehr gut geeignet.
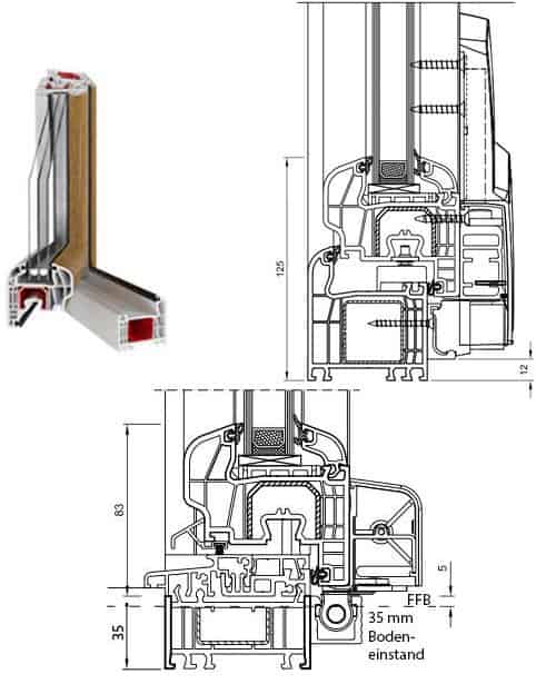
7 Kammer System Bautiefe 82 mm


Kunststoff Hebeschiebetür
ab 4,486.30 €Kunststoff Hebeschiebetür 2 Flügelig
ab 8,725.08 €
Alu-Hebe-Schiebetüren gedämmt
Hebe-Schiebetüren eignen sich besonders für die Verbindung von Wohnräumen oder Wintergärten mit der Natur, für harmonische Übergänge von Wohnräumen zu Parallel Schiebe Kipp Türen, Terrassen oder Gärten. Sie geben den Zugang zur Außenwelt frei. Auch geöffnet sind sie platzsparend, wodurch der Nutzungskomfort erheblich steigt. Das System gehört zu den Produkten mit den besten Parametern und entspricht allen Anforderungen, die für diese Produktgruppe gelten. Das System wird in zwei Varianten gefertigt, die sich durch Wärmedämmung voneinander unterscheiden: ST und HI. Mit seinem Profilaufbau eignet sich das System für die Fertigung von exklusiven großflächigen Türen mit Zwei- oder Dreischeibenverglasung, die eingesetzten Werkstoffe und technischen Lösungen sichern einen hohen Wärme- und Schallschutz. Das System bewährt sich sowohl in Einfamilienhäusern, als auch in Appartementhäusern oder Hotels hervorragend.
Funktionalität, Ästhetik, konstruktionsvorteile:
- durch stabile und schlanke Profile können Türen bis zu einer Höhe von 3,2 m, einer Breite von 3,3 m, mit Flügelgewichten bis 400 kg und Flachschwellen realisiert werden
- durch eine breite Palette von Füllungen, inkl. Zwei- oder Dreischeibenverglasungen, Isolierstege, zusätzliche Zubehörteile und Isoliereinsätze können sehr gute Wärme- und Schallschutzparameter erzielt werden
- Glasleisten in drei Ausführungen: Standard (rechteckig), Prestige (abgerundet) und Style (profiliert)
- durch geschlossene Glasleisten und aushebehemmende Elemente kann der verbesserte Einbruchschutz gesichert werden, ohne Konstruktionsteile von Türen wesentlich ändern zu müssen
- durch spezielle Form der Anschlag- und Glasdichtungen sowie entsprechende Beschläge können sehr gute Werte der Luftdurchlässigkeit und Schlagregendichtheit garantiert werden
- Profile eignen sich für die Montage von handelsüblichen Beschlägen mit manueller oder automatischer Verriegelung
- Optional: automatischer Türantrieb „HS-Master”, Steuerung per Taste oder Fernbedienung.
- Durch den im System verfügbaren Mechanismus „HS Speed Limitem” lassen sich auch große und schwere Türen sicher bedienen.
- durch eine breite Farbpalette können Türen für jeden Wohnraum und jede Außenanlage frei und flexibel ausgelegt werden
3 Kammer System wärmeisoliert Bautiefe 77 mm

3 Kammer System hoch wärmeisoliert Bautiefe 77 mm

Aluminium Hebeschiebetür
ab 7,245.91 €Aluminium Hebeschiebetür 2 Flügelig
ab 9,416.47 €
Alu-Faltanlage (Schiebe-Faltanlage)
Das präsentierte System der thermisch getrennten und ungedämmten Falt-Schiebetür ist eine moderne Konstruktion. Die den Erwartungen und Anforderungen unserer Kunden – Architekten, Bauherren und der mit uns zusammenarbeitenden Firmen entgegenkommt. Die Konstruktion der nach innen öffnenden Falt-Schiebetür kann in folgenden Fenster- und Tür-Systemen ausgeführt werden.
Die Bautiefe der Profile hängt von dem angewählten System an und beträgt von 50 mm (Blendrahmen), 59 mm (Flügel) Casement bis entsprechend 70 mm und 79 mm.
Der k-Wert und der Schalldämmwert hängen auch von dem eingesetzten Alu-System ab.
Durch eine spezielle Konstruktion von Profilen selbst und den Einsatz von Bearbeitungsschablonen ist die Vorfertigung von Falt-Schiebetüren einfach und schnell.
Die Blendrahmen- und Flügelprofile haben profilierte, für den EURO-Standard dimensionierte Nuten für D/K-Beschlag und Verbindungsteile. In der Falt-Schiebetür werden bewährte ROTO-Beschläge eingesetzt. Die Laufschiene kann auf dem oberen Blendrahmenprofil (top-hung) oder an der Schwelle (bottom-hung) eingebaut werden. In den einzelnen Systemen kann unter unterschiedlichen Schwellenausfertigungen und -einbaumöglichkeiten gewählt werden.
Die Profile werden bei minimalem Bearbeitungsaufwand unter Anwendung von gelieferten Aluminium-Verbindungsstücken und zusätzlichen Kleinteilen verbunden. Die L-Eckverbindungen werden durch das Schneiden der Blendrahmen- und Flügelprofilenden mit dem Winkel von 45° verklebt.
Die Glas-, Anschlag- und Mitteldichtungen werden aus Kunstkautschuk EPDM hergestellt. Die meisten Dichtungen werden durchlaufend montiert, ohne dass sie in den Ecken zugeschnitten werden. Ihre Enden werden in der Hälfte der Länge des oberen Querträgers zusammen verklebt. Dadurch wir die Dichtheit gegen Wasser- und Luftdurchdringung sichergestellt. Mitteldichtungen werden mit dem Winkel von 45° zugeschnitten und in den Ecken zusammen verklebt oder mit dem Winkel von 90° zugeschnitten und mit einer Gummiecke zusammen verklebt.
Jede Konstruktion im Innenbereich soll ein wirksames Entwässerungs- und Belüftungssystem im Scheibenzwischenraum und im Flügel-Blendrahmen-Zwischenraum haben. Die Belüftungs- und Entwässerungsöffnungen sind mit Kunststoffendstücken von außen abgedeckt.
Ausführungsvarianten für Faltanlagen




























































